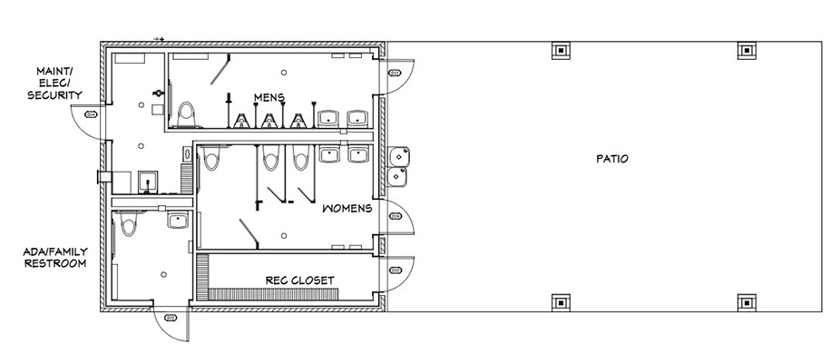
Project: Wilmette Community Playfields Park Restrooms and Patio, Wilmette Park District, 2021

Architect/Designer

Location: Wilmette Park District, Wilmette, IL

New restroom and Storage and Covered Patio

Experience Matters - Resume of Christine Oleson:

 

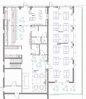
Project: West Paddle Ball Hut Addition and Site Utilities - Wilmette Park District, 2022

Architect/Designer

Location: Wilmette Park District

Addition to paddle ball hut to provide more seating and office space and electrical/mechanical site utilities for courts and lighting

Project: Deerpath Community Park North and South Buildings - City of Lake Forest, 2021

Architect/Designer

Location: Lake Forest, IL

Schematic Design South Building including Restrooms and Patio, North Building including Restrooms, Team Room, Storage, Concessions and Patio

Project: Antioch Salt Barn, Village of Antioch Public Works, 2020

Architect/Designer

Location: Antioch, IL

New Salt Barn for the City of Antioch, IL

Project: Wine Bar, 2021

Architect/Designer

Location: Northern Illinois

Wine Bar Schematic Design

Project: Home Circuit Gym, 2019

Architect/Designer

Location: Northern Illinois

Addition for 12' Clear ceiling Circuit Home Gym

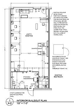
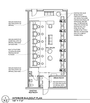
Project: Commercial Tenant Build-Out, 2019

Architect/Designer

Location: Northern Illinois

Multi-Tenant Building Unit Build-Out - Nail Salon, Hair Salon

Project: Major Addition and Whole House Renovation, 2019

Architect/Designer

Location: Northern Illinois

Addition for 12' Clear ceiling Circuit Home Gym

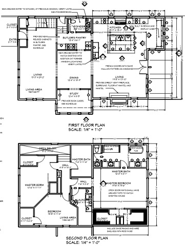
Project: Two Story Addition - Kitchen, Living Room, Master Suite, 2021

Architect/Designer

Location: Northern Illinois

Addition Doubling Size of Home with two story addition

Project: Home Addition, 2019

Architect/Designer

Location: Northern Illinois

Bedroom Master Bath Addition

Project: New Ranch Home, 2020

Architect/Designer

Location: Northern Illinois

New Ranch Home

Project: Three Season Room, 2019

Architect/Designer

Location: Northern Illinois

New seamless three season room addition for expanded livable space

Project: Kitchen Renovation with Brick Arches, 2018

Architect/Designer

Location: Northern Illinois

Complete renovation of Kitchen to open concept with new fourteen foot island, brick arches and new configuration

Project: Kitchen Renovation French Country, 2018

Architect/Designer

Location: Northern Illinois

Complete renovation of first floor, open concept

Project: Kitchen Renovation Work and Entertainment, 2017

Architect/Designer

Location: Northern Illinois

Small Kitchen combines work and entertainment by using hidden work spaces and storage options.

Project: Kitchen Renovation French Country, 2017

Architect/Designer

Location: Northern Illinois

Complete renovation of first floor, open concept

Oleson Design Studio, LLC

116 S. IL Route 83, Unit C • Grayslake, IL 60030

christine@olesondesignstudio.com•847-322-9336

©2025 Oleson Design Studio, LLC •

All Rights Reserved